DESIGN TEAM
  • Pamela B.
  • Christian B.
  • Scott S.
CONTRACTOR
  • North East Landscaping Services
YEAR

2025

LOCATION
Washington
CATEGORY
  • Custom Landscaping and Gardens
  • Luxury Outdoor Living Spaces
  • Recreational Spaces

Yutko

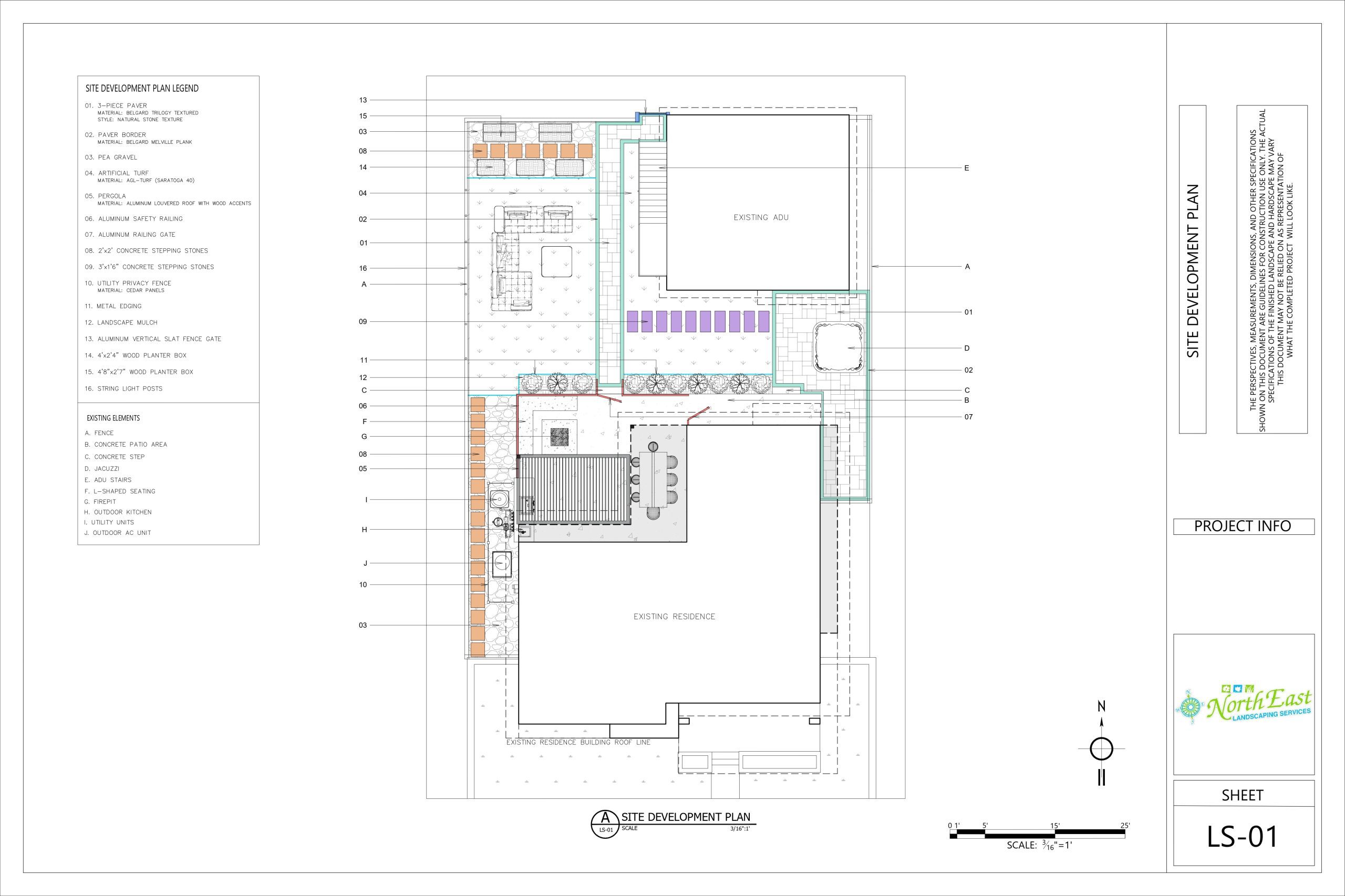
This modern courtyard-style backyard is framed by two contemporary structures, creating a private and intentional outdoor living space. A raised covered patio with a sleek louvered pergola, built-in outdoor kitchen, and modern stone fire table anchors the design, while clean railings and structured steps connect seamlessly to the yard below.

The lower turf lounge area offers a relaxed, resort-inspired setting with modular seating, garden beds, and overhead string lights that create a warm canopy effect. A tucked-away spa and layered landscape lighting transform the space at night, delivering a perfect balance of entertainment and serenity.