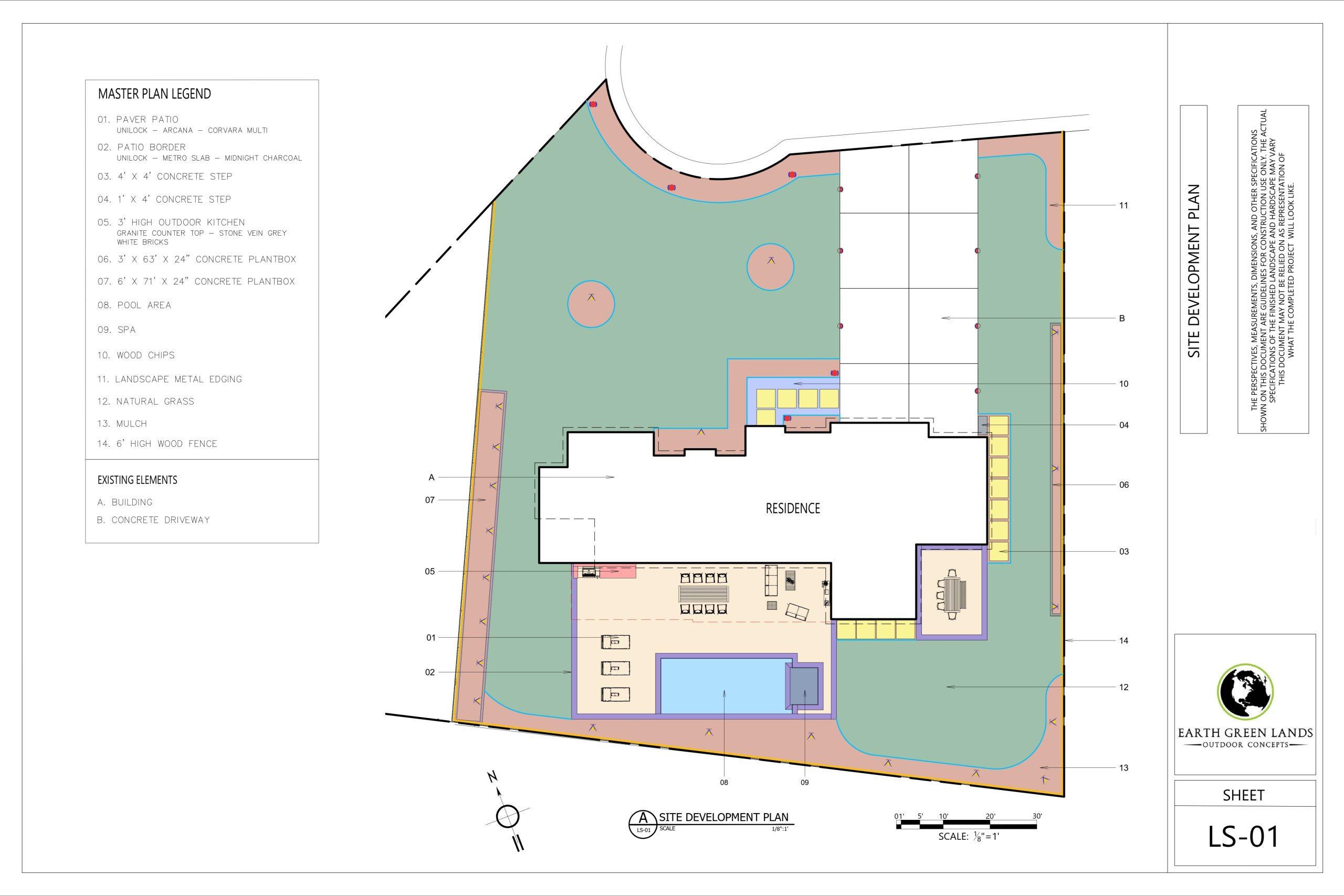
This modern backyard design creates a sophisticated outdoor living environment that blends clean architectural lines with comfortable entertaining spaces. The project centers around a spacious covered patio, custom pool design, and thoughtfully integrated landscaping that transforms the backyard into a resort-style retreat.
Strategic landscape lighting highlights the pool, patio, and garden beds while illuminating the surrounding fence line and trees. At night, the lighting transforms the space into a warm and inviting outdoor setting ideal for evening entertaining and relaxation.
The result is a refined backyard living space that combines a covered patio, outdoor kitchen, swimming pool, spa, and elegant landscaping into a cohesive modern retreat designed for entertaining, relaxation, and everyday outdoor living.

