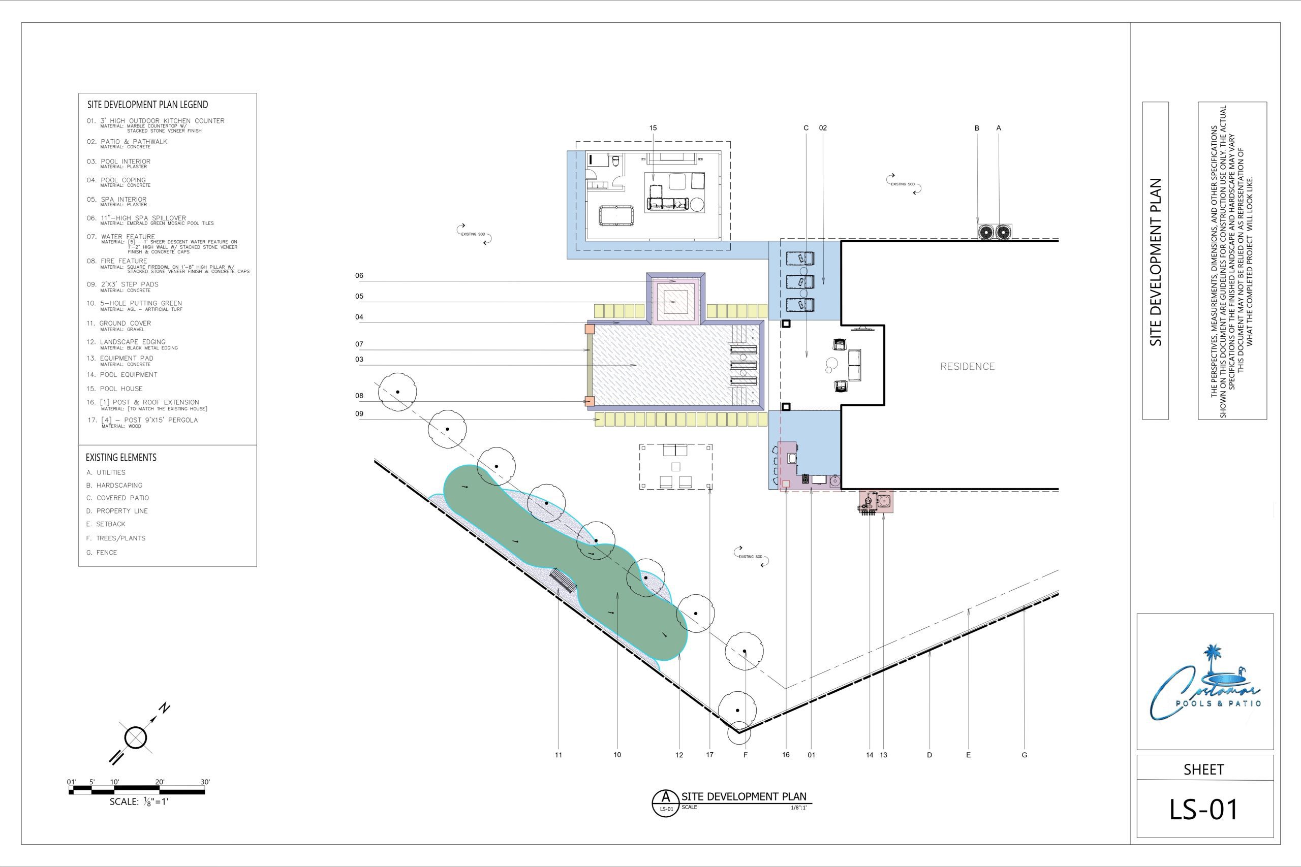
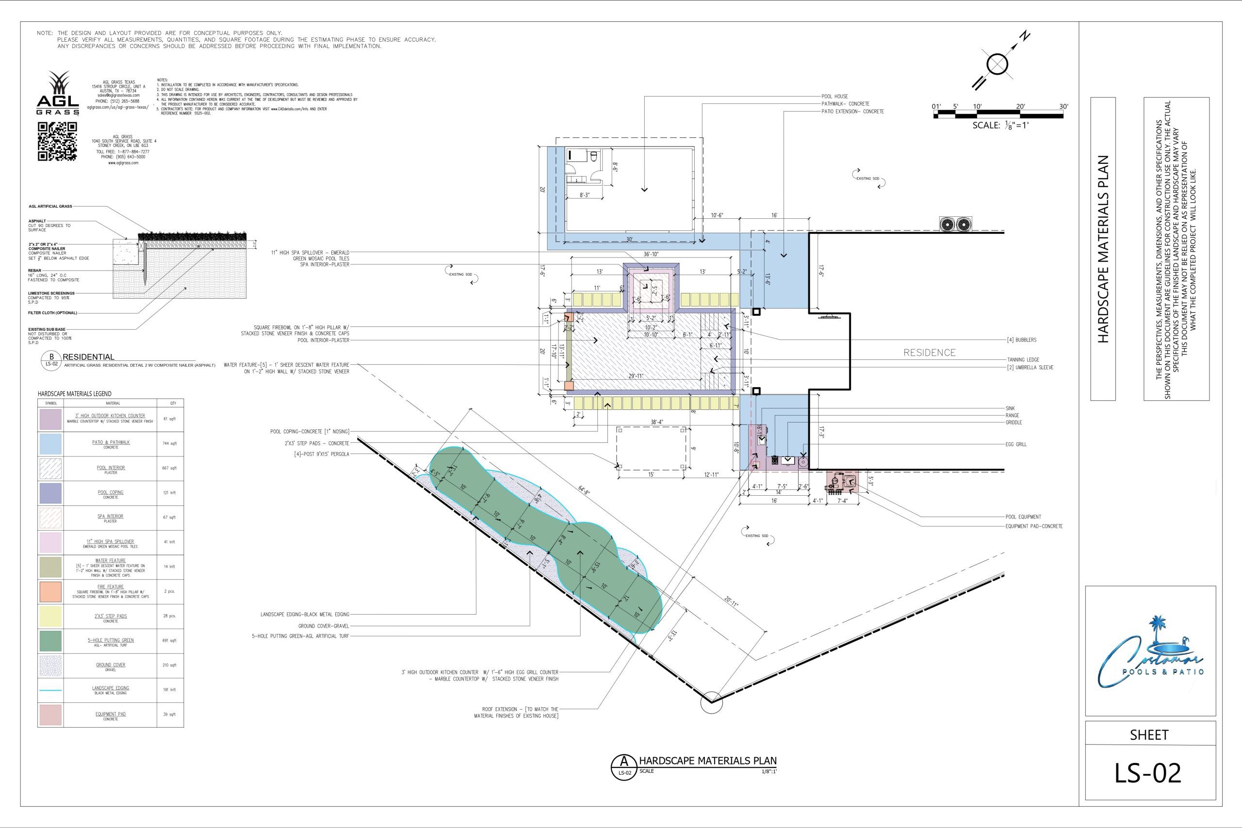
This modern luxury outdoor living design blends architecture, landscape, and lifestyle into one cohesive backyard experience. The layout is centered around a geometric pool design featuring a raised spa, sun shelf loungers, and integrated fire bowls that create a strong focal point from both interior and exterior viewpoints. Clean stepping stone walkways and structured turf joints guide movement throughout the space while maintaining a balanced, contemporary aesthetic.
This design demonstrates how strategic layout planning, material selection, and lighting can transform a standard backyard into a high-end outdoor living environment that supports entertaining, relaxation, and year-round enjoyment.

