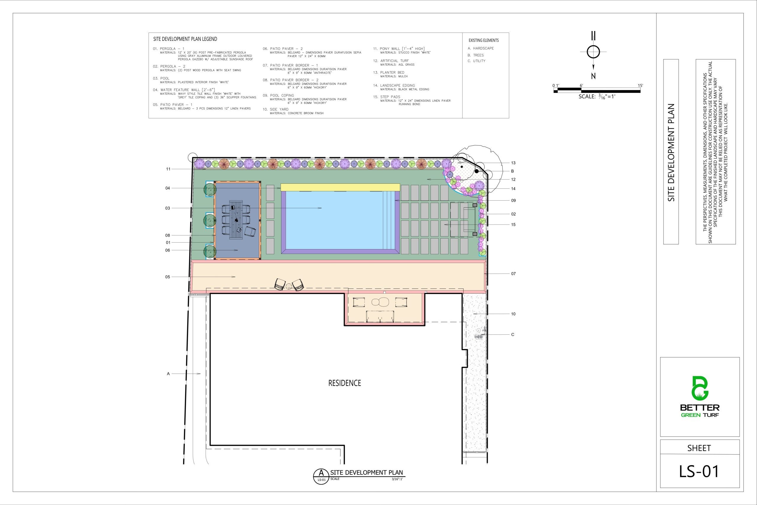
This contemporary backyard design features a sleek rectangular swimming pool enhanced by a raised feature wall with three sheer descent waterfalls, creating both visual impact and relaxing ambient sound. Integrated LED accent lighting highlights the water movement and architectural lines, transforming the outdoor space into an inviting nighttime retreat.
This design demonstrates how combining modern hardscape geometry, integrated water features, and intentional planting design can create a refined outdoor living environment that supports entertaining, relaxation, and everyday enjoyment while elevating property aesthetics and value.

