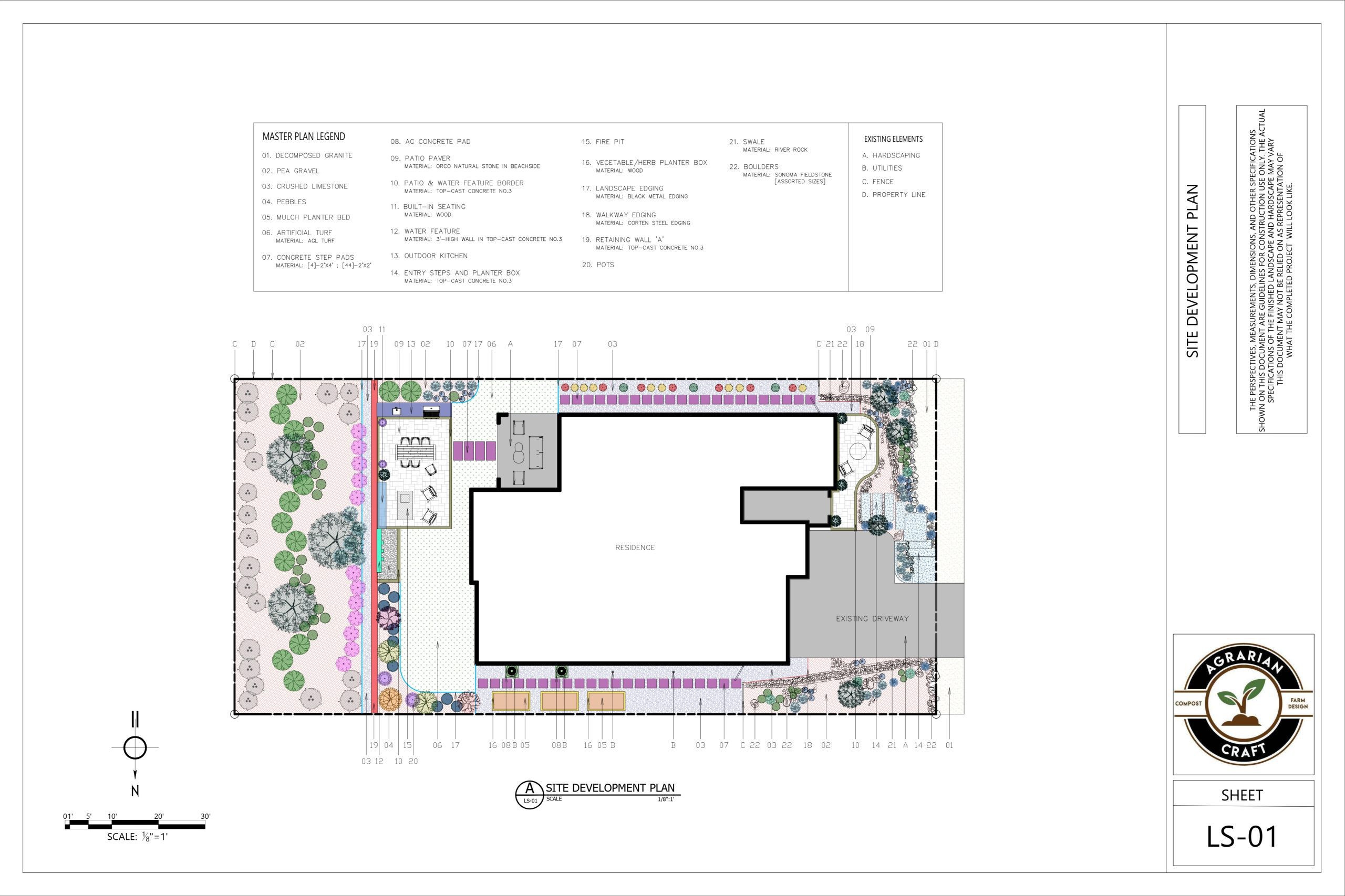
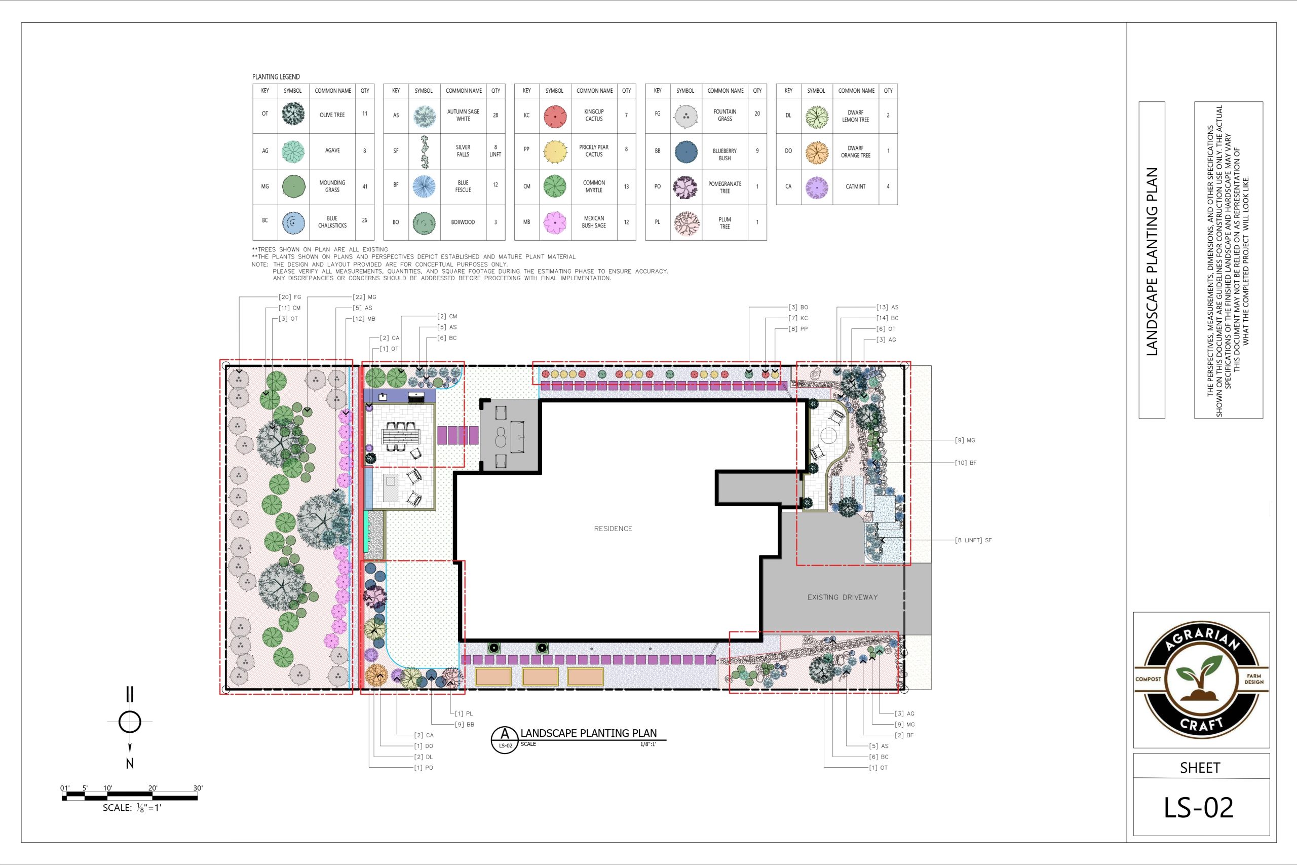
This modern outdoor living design transforms the home into a seamless extension of indoor comfort and outdoor entertainment. The project blends clean architectural lines with natural textures to create a warm, inviting environment that functions beautifully both day and night.
Strategic landscape lighting ties the entire design together. Subtle step lights, uplights, and accent lighting highlight trees, architectural elements, and pathways while extending the usability of the outdoor living area well into the evening.
The result is a thoughtfully designed outdoor environment that balances modern style, functional living space, and natural beauty. This backyard retreat is built for entertaining, relaxing, and enjoying outdoor living year-round.

