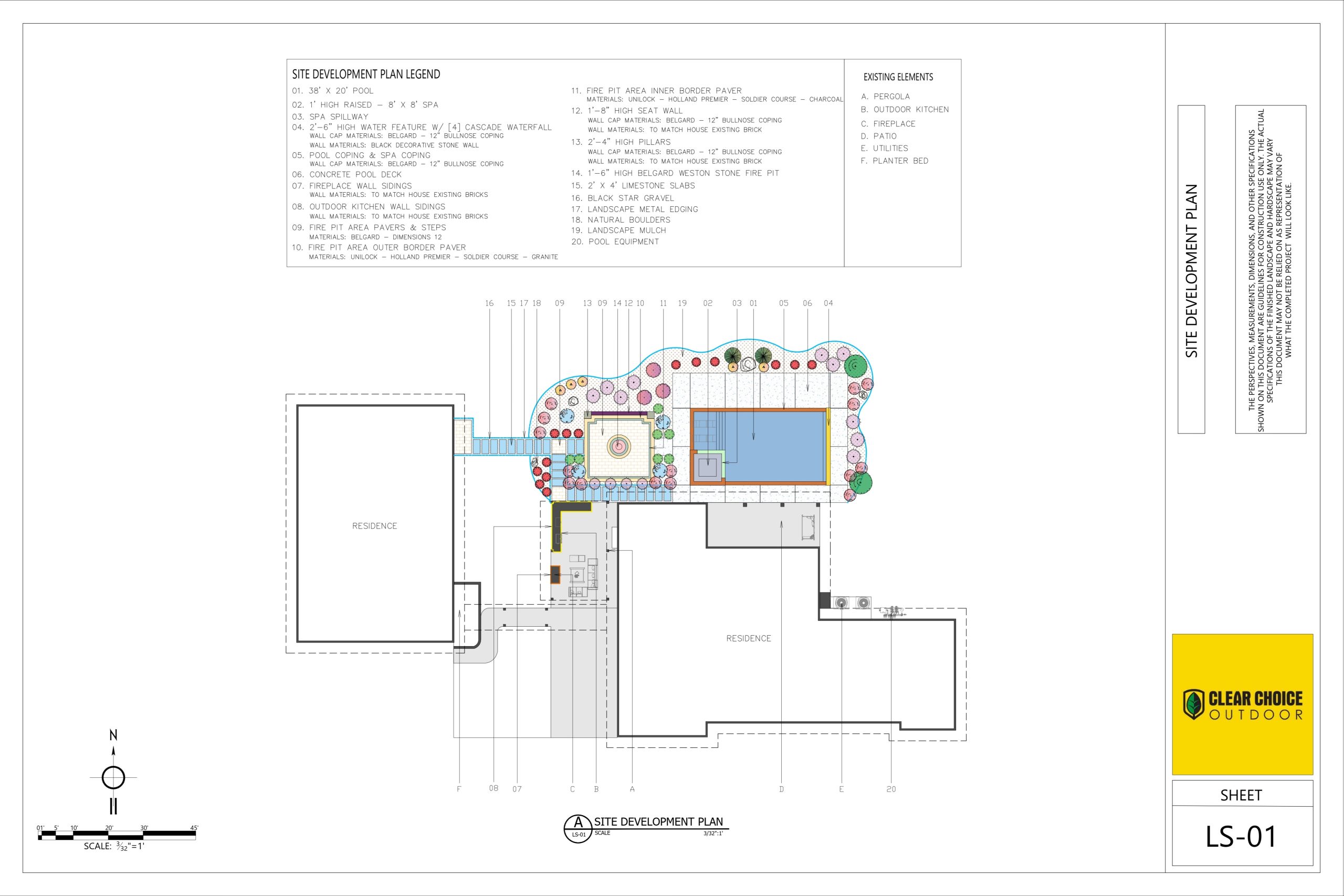
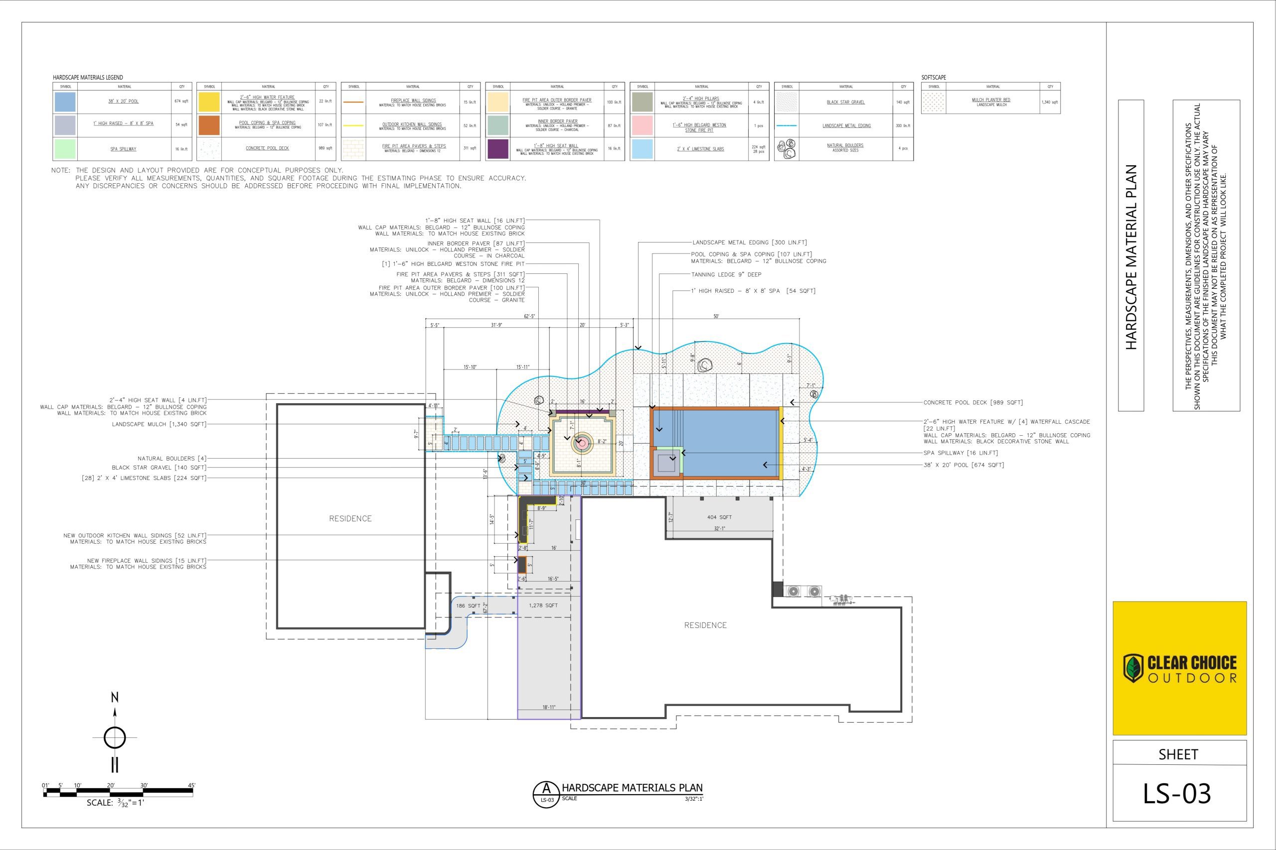
This elegant outdoor living design blends resort-style comfort with modern landscape architecture to create a cohesive and highly functional backyard environment. The rectangular swimming pool features a raised spa that spills gently into the main pool, accompanied by a shallow tanning ledge with in-water lounge seating for relaxed sun exposure. A sleek water feature wall introduces movement and ambient sound, enhancing the tranquil atmosphere while reinforcing the clean architectural aesthetic.
Geometric stepping stone pathways guide circulation through the yard while reinforcing the structured layout. The combination of soft planting forms, strong architectural lines, and functional entertainment zones demonstrates how intentional design planning can elevate everyday outdoor living while enhancing property value and visual appeal.


