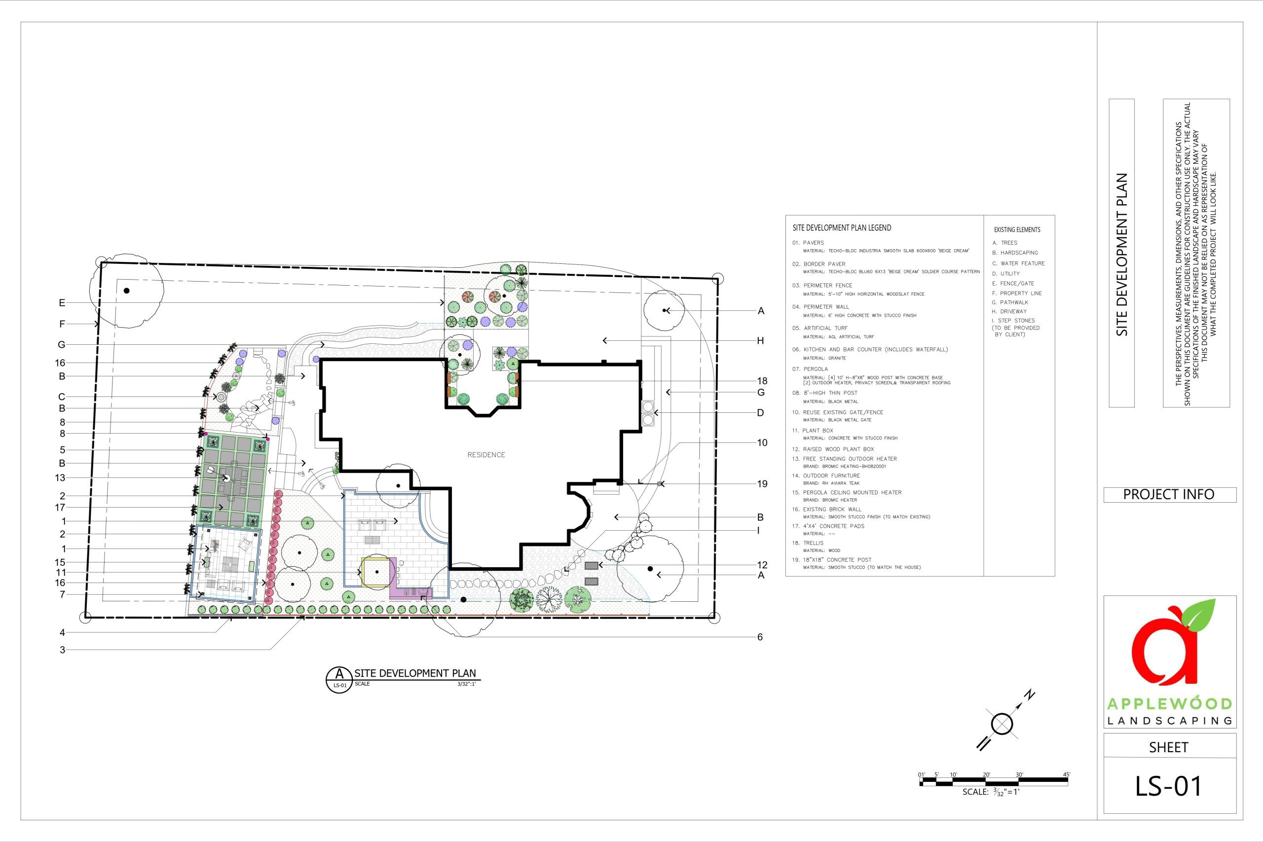
This backyard showcase a peaceful and elegant backyard retreat designed for both relaxation and entertaining. The space centers around a modern pergola lounge that creates a comfortable outdoor living room, complete with soft seating, light wood finishes, ceiling fans, and flowing curtains that give the space a resort-like atmosphere. Just outside the pergola, a spacious outdoor dining area sits on a striking grid-style patio made from large stepping slabs separated by clean turf joints, creating a modern yet natural pattern.
At night, integrated lighting transforms the space, highlighting the steps, trees, and patio while string lights add a warm glow over the dining area. The result is a tranquil outdoor environment that feels like a private garden escape while still offering functional spaces for dining, lounging, and entertaining.


