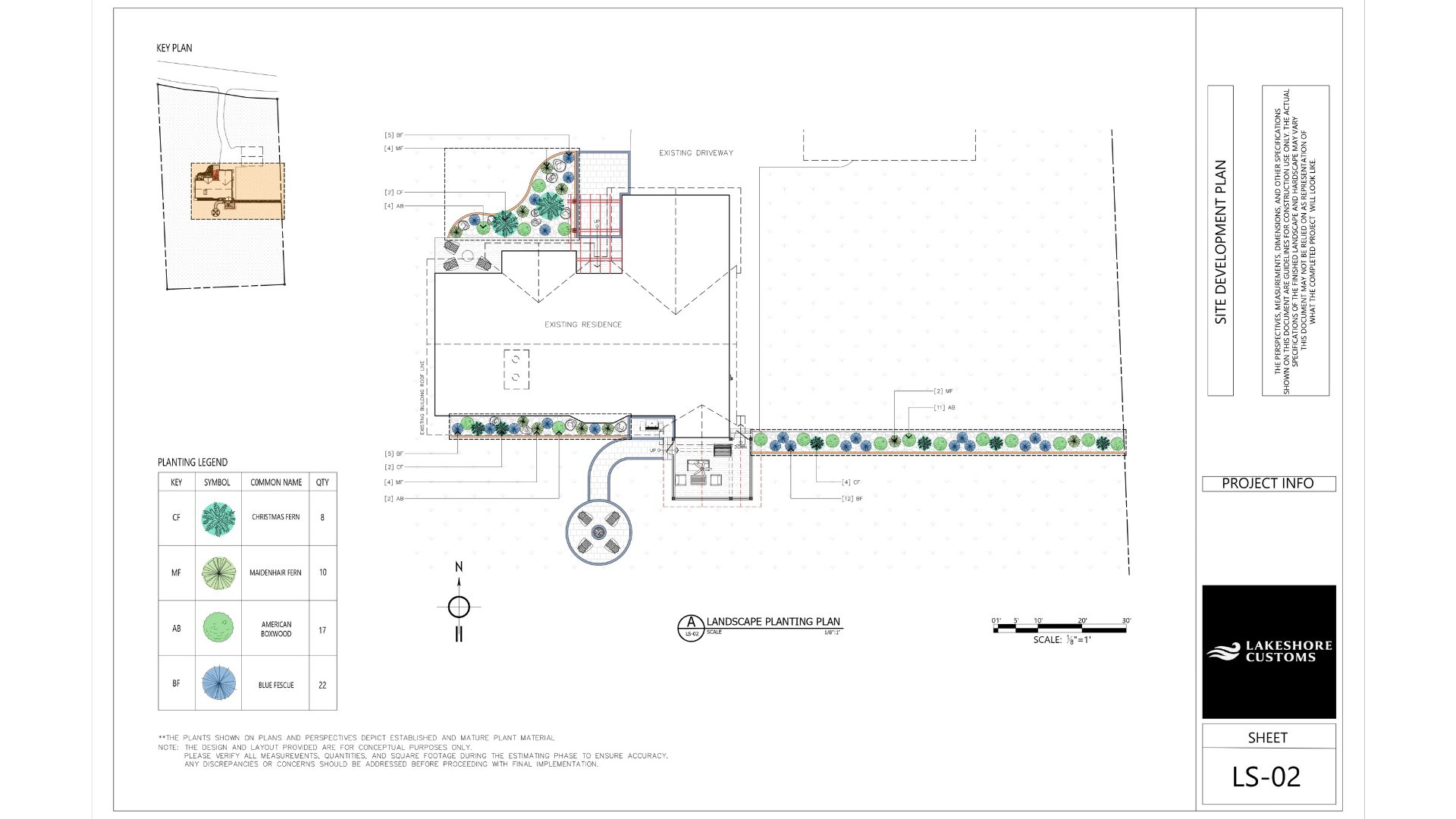
This modern backyard design focuses on clean lines, open space, and elevated outdoor living. A large flat-roof pergola anchors the yard, creating a defined lounge and dining area with a seamless indoor-outdoor connection to the home. Neutral porcelain pavers establish a crisp foundation, while dark structural posts add contrast and contemporary character.
Perimeter planting is simple and structured, with evenly spaced shrubs and citrus trees softening the boundary walls while maintaining a clean, minimalist aesthetic. The result is a balanced, low-maintenance outdoor space designed for relaxed entertaining, intimate evenings by the fire, and everyday comfort.

