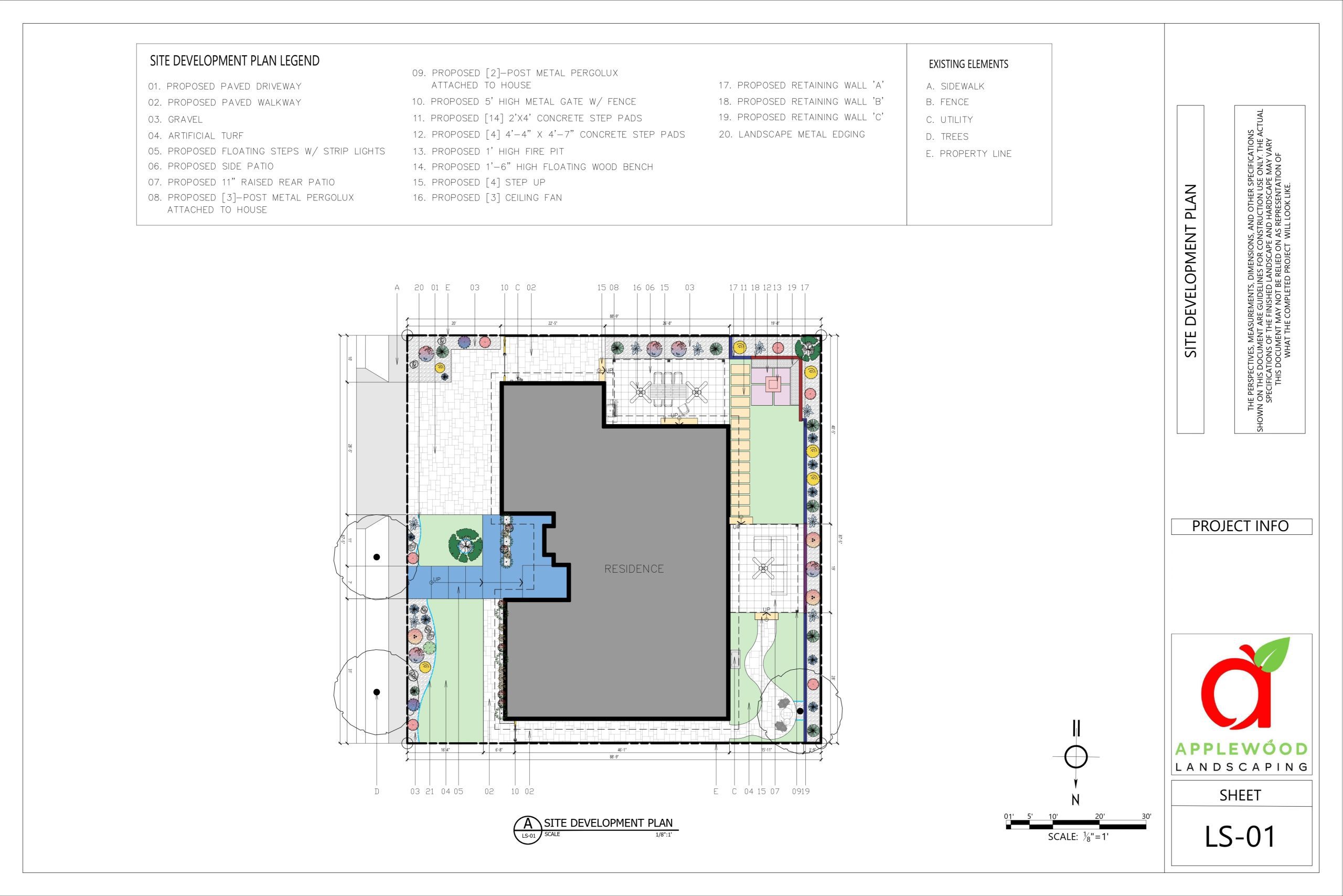
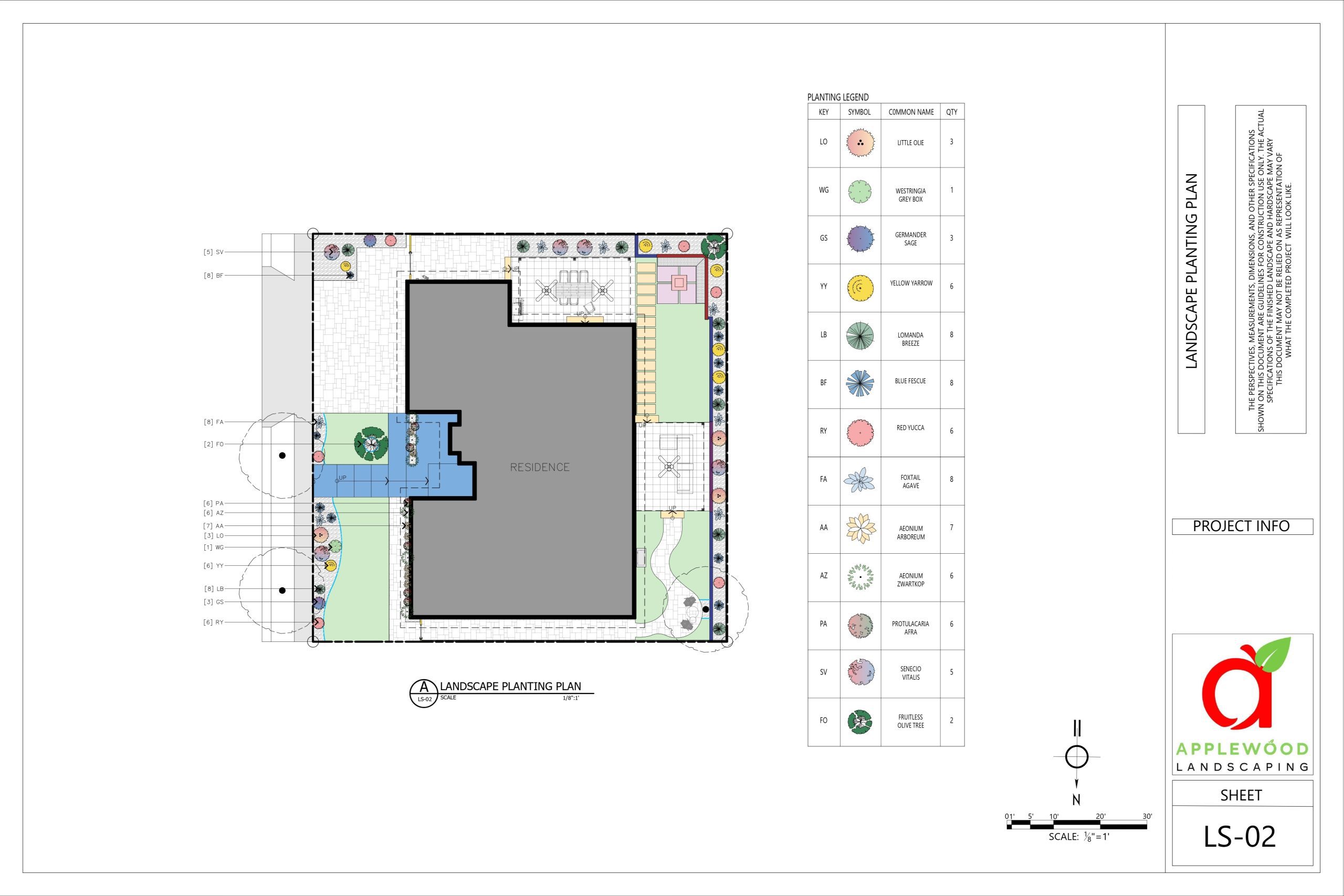
This modern backyard design transforms a compact space into a stylish and functional outdoor retreat, centered around a sleek covered patio with lounge seating, dining area, and integrated ceiling fans for year-round comfort. Clean concrete pavers and soft turf inlays create a flowing layout that connects multiple zones, from the shaded living area to the open lawn and fire pit lounge.
Thoughtfully placed landscape lighting highlights pathways, steps, and planting beds, while modern fencing and low-profile retaining walls maintain a clean architectural aesthetic. From daytime relaxation to evening entertaining, every detail is designed to maximize usability, comfort, and visual appeal, delivering a cohesive outdoor environment that feels both modern and welcoming.

