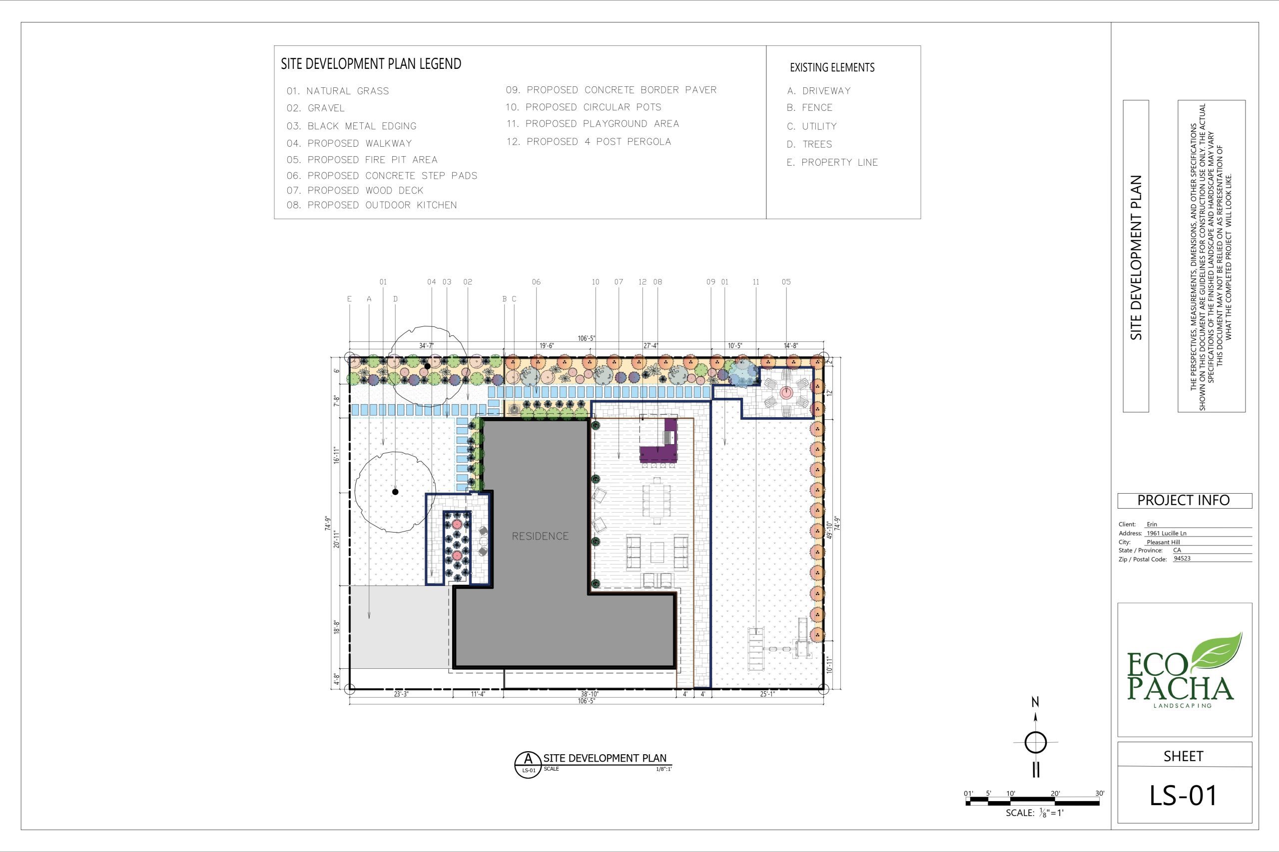
This project showcase a thoughtfully designed modern backyard outdoor living space that blends comfort, functionality, and elegant landscape design to create a welcoming environment for relaxing and entertaining. Connecting these spaces is a beautifully designed side garden pathway composed of large stepping stones set within decorative gravel. The pathway is bordered by layered planting beds featuring ornamental grasses, flowering perennials, and structured shrubs that add texture, color, and seasonal interest.
Together, the deck, outdoor kitchen, fire pit lounge, and garden pathways form a cohesive backyard retreat that balances modern outdoor living with natural landscape elements. The design transforms the property into a functional yet relaxing outdoor environment that can be enjoyed throughout the day and into the evening.

