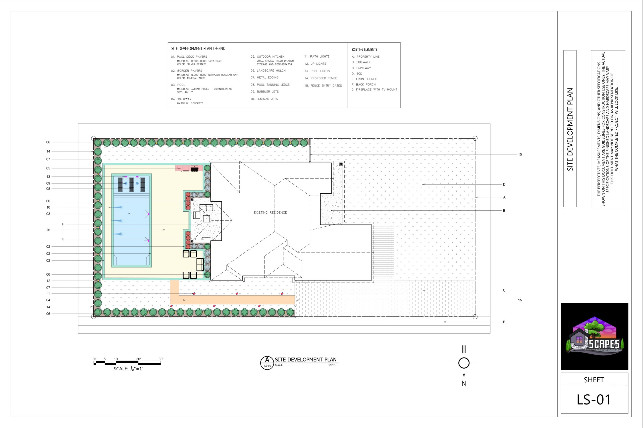
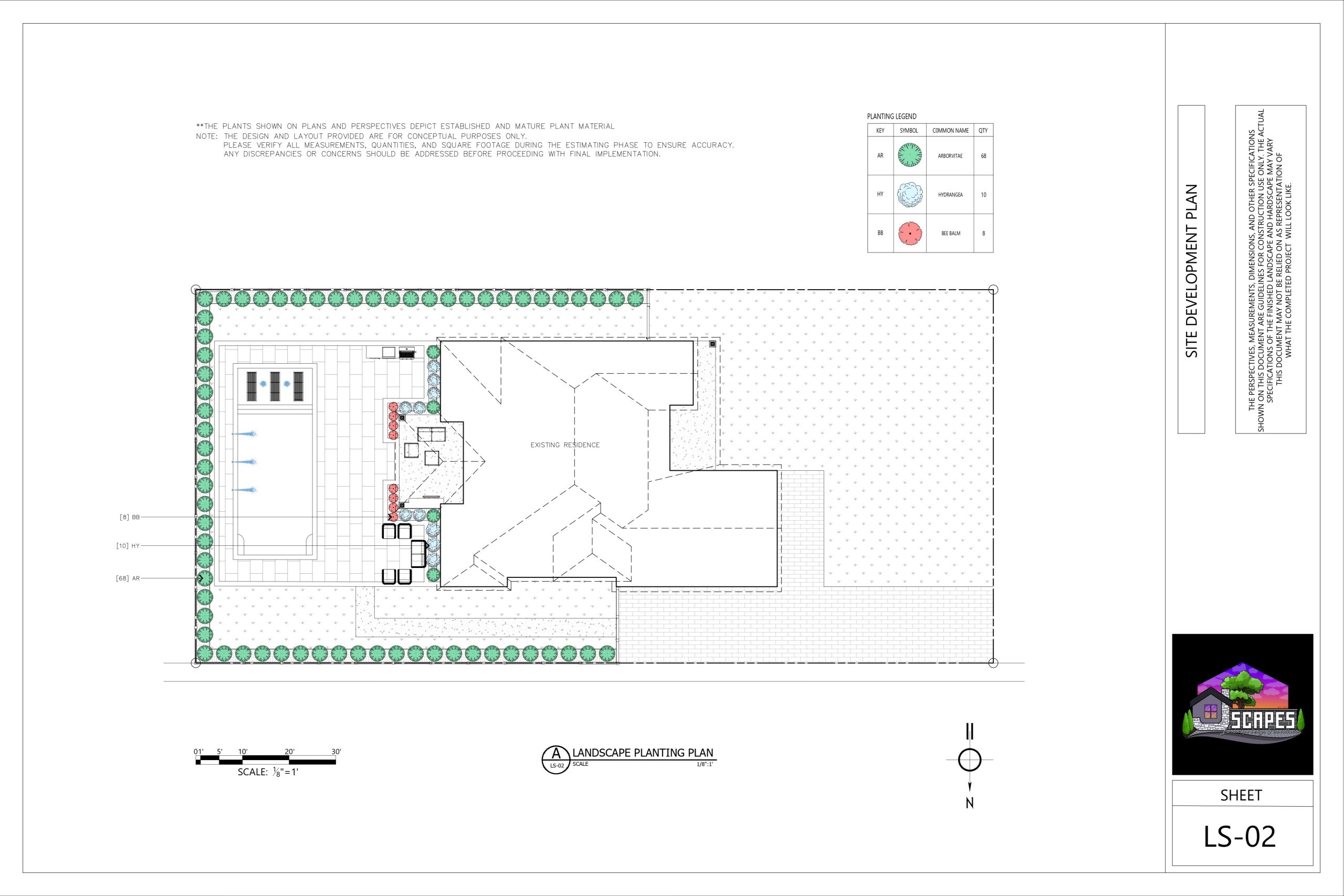
This design presents a clean, modern backyard retreat centered around a sleek pool and refined outdoor living spaces. Large-format stone pavers create a seamless, uncluttered patio layout that emphasizes openness and functionality, while subtle planting beds and privacy hedges frame the space without overwhelming it. The pool serves as the focal point, featuring integrated fountains, in-water loungers, and soft lighting that adds movement and visual interest.
Daytime views highlight the crisp geometry and simplicity of the layout, while nighttime scenes transform the space into a calm, resort-like atmosphere with warm lighting reflections across the water and stone surfaces. Overall, the design balances luxury and restraint—perfect for entertaining, relaxing, and enjoying the outdoors year-round.

