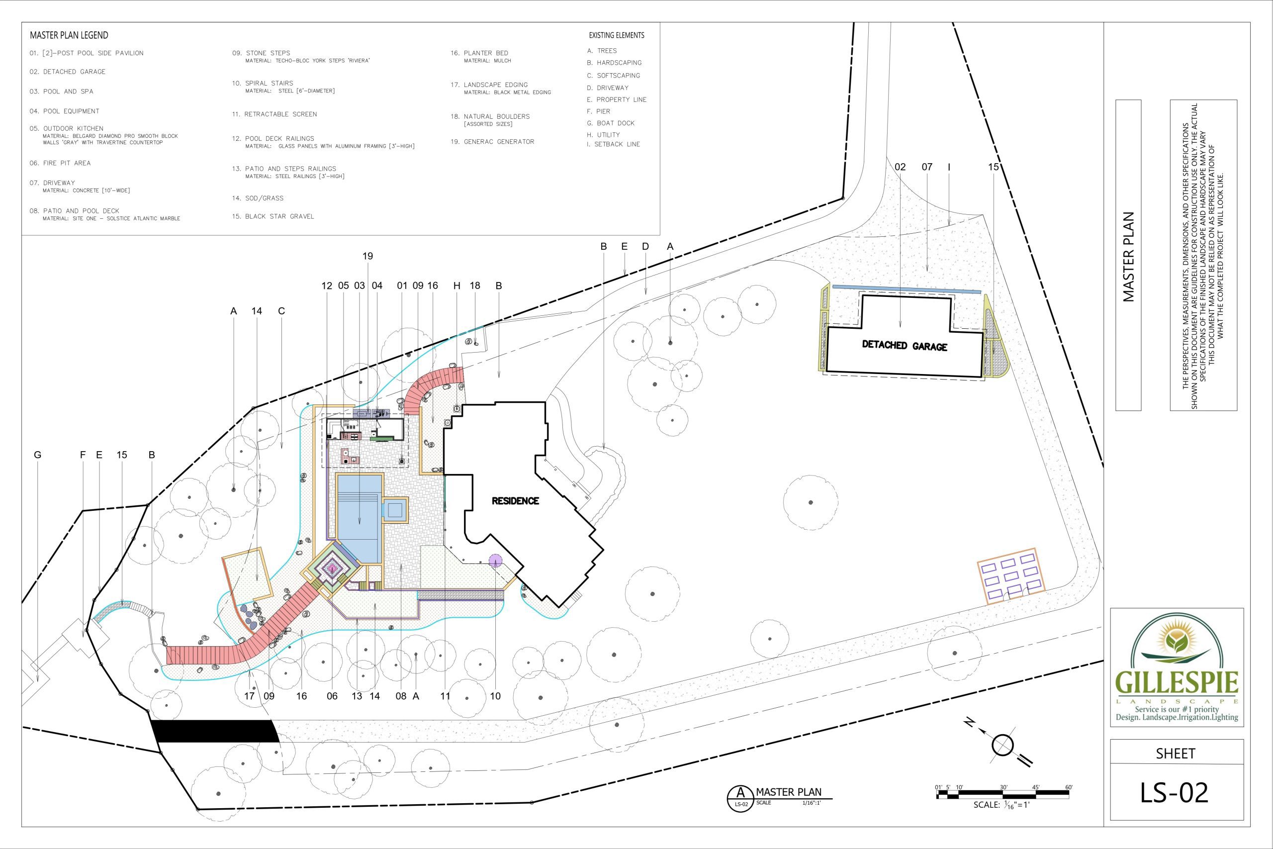
This modern outdoor living design blends resort-style amenities with clean architectural detailing to create a cohesive, multi-level backyard retreat. The elevated pool terrace serves as the visual centerpiece, featuring a sleek infinity-edge waterfall that cascades into a lower lounge area, adding movement, sound, and visual depth to the space. Integrated LED lighting highlights architectural lines and enhances nighttime ambiance throughout the landscape.
The planting design balances ornamental grasses, flowering shrubs, and structured greenery to soften hardscape elements and provide seasonal interest. Together, these elements create a refined outdoor living environment that prioritizes comfort, functionality, and architectural cohesion while delivering a high-end residential resort experience.


