- Jonell S.
- Jino J.
CONTRACTOR
- High Country Outdoor Solutions
YEAR
2025
LOCATION
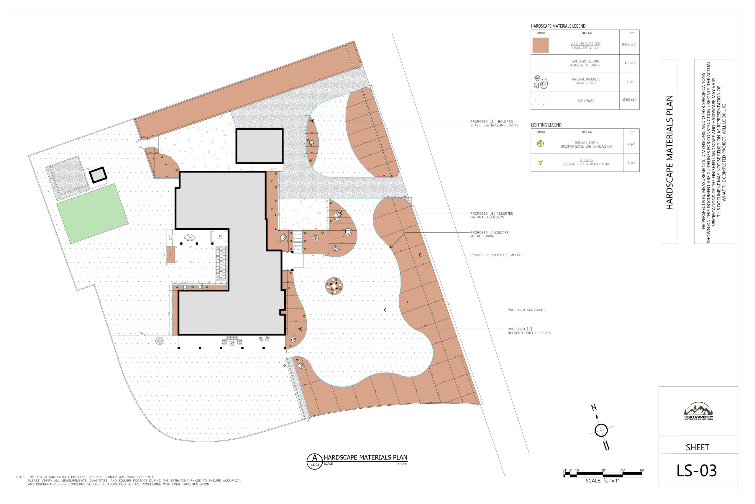
CATEGORY
- Custom Landscaping and Gardens
- Luxury Outdoor Living Spaces
- Recreational Spaces
- Pools
Fowler
This project combines rustic charm with modern sophistication, designed to blend seamlessly into its lush, wooded surroundings. The exterior palette features warm natural wood siding, dark metal roofing, and stone accents that bring texture and depth to the home’s clean architectural lines.
From the expansive driveway and three-car parking area set the tone for a property that balances practicality and elegance. Mature trees and layered landscape plantings frame the home, creating both privacy and a welcoming feel.
At the heart of the residence lies a serene courtyard featuring a small dipping pool which is perfect for cooling off or enjoying an evening under the stars. The covered patio area extends the living space outdoors, complete with dining and lounge areas ideal for entertaining. Nighttime lighting adds another dimension, accentuating the home’s architectural details and softening the landscape with a warm, inviting glow.
We gave this 3D render a haunting twist—moody lighting, eerie shadows, and just the right touch of Halloween magic. Proof that even the most stunning outdoor spaces can get a little boo-tiful this time of year.


